Artículo escrito por Jon Goitia de la Torre , Arquitecto y propietario de Goitorre S.L, para idealista news
Estamos acostumbrados a que todas las viviendas viejas se anuncien con la expresión “grandes posibilidades de reforma”. Esto en ocasiones es cierto y en otras no tanto
Sin olvidar que los factores externos al propio piso, como por ejemplo ubicación, calidad y estado de conservación del edificio, idoneidad de los vecinos, servicios comunes, etc. son igualmente relevantes, en este artículo vamos a analizar cuáles son las características más importantes a tener en cuenta de puerta de entrada hacia dentro:
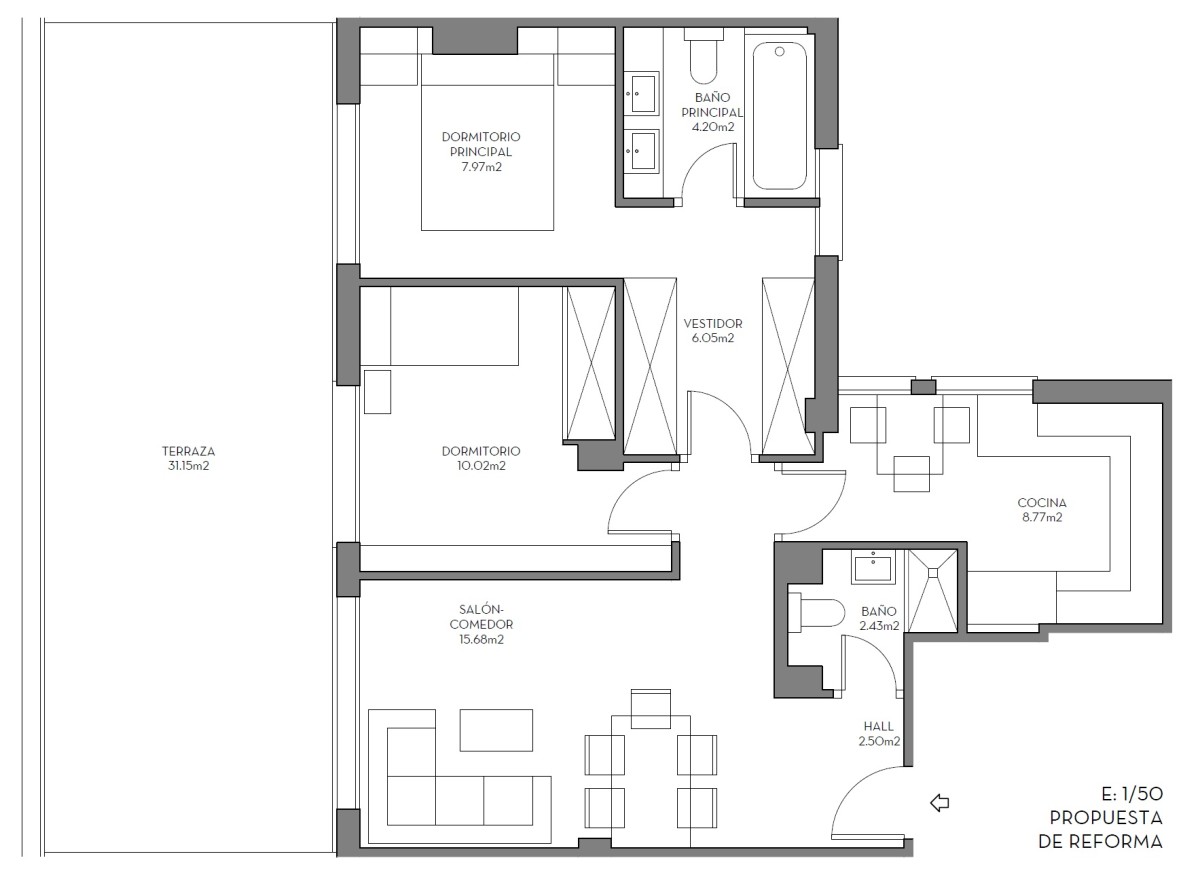
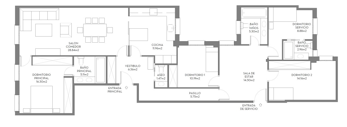
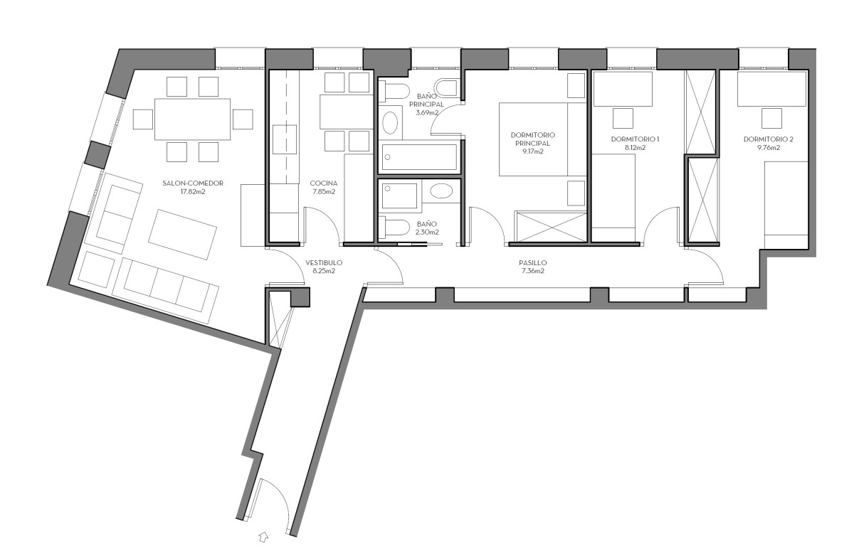
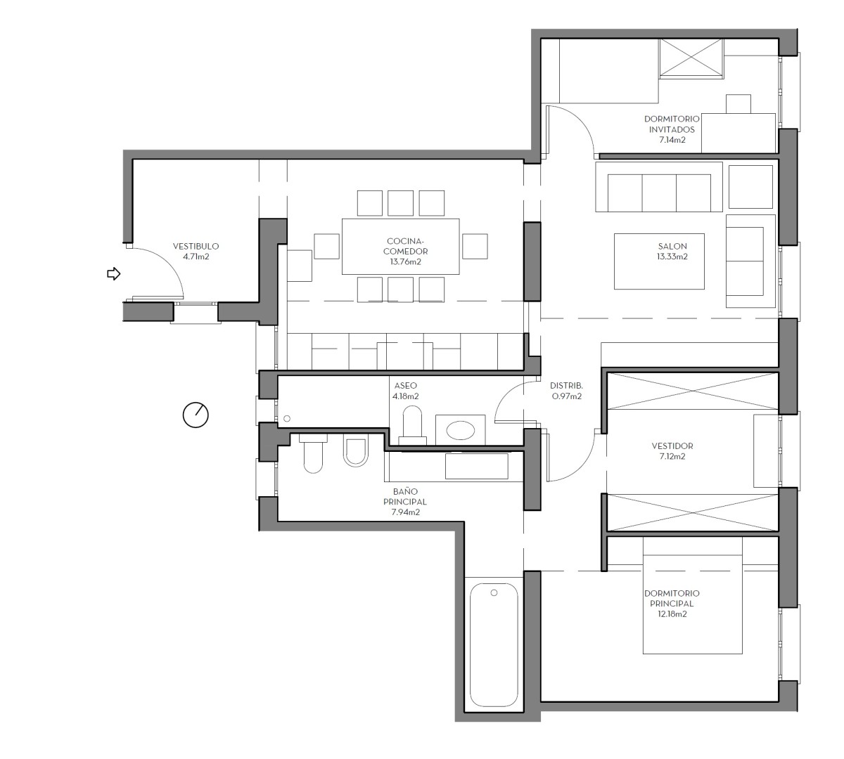
1. Superficie útil: Dado que las comparativas de precio se suelen hacer en €/m2, no debemos cometer el error de dar por buena la superficie del catastro ni de la escritura, sino que debemos dibujar y medir el piso para saber la superficie útil real.
2. Envolvente: La forma del perímetro del piso, la posición de la puerta de entrada y el número y ubicación de las ventanas tienen una importancia vital para saber si se podrá hacer o no una nueva distribución moderna y atractiva. Como ejemplo, hay pisos de proporción tan alargada que es imposible resolverlos sin un interminable pasillo, o pisos muy grandes, a priori muy interesantes, que sin embargo encierran en el centro grandes estancias ciegas que no pueden contener más que baños o trasteros.
3. Elementos fijos: En los edificios hay varios elementos que atraviesan las viviendas y no pueden ser ni eliminados, ni tan siquiera desplazados de ubicación. Los más conocidos son los muros de carga, que en una primera visita no suelen pasar desapercibidos. Es muy importante tenerlos en cuenta, porque marcarán sí o sí la futura redistribución de la vivienda.
En la mayoría de los edificios, la estructura se resuelve con pilares. Cuando estos son de hormigón es muy fácil localizarlos por su tamaño, pero en el caso de los pilares metálicos o de madera, hay que tener cuidado de que no estén incorporados a un tabique que tenemos la intención de demoler. Además de la estructura, tenemos verticales de instalaciones que es necesario ubicar.
Las bajantes de saneamiento nos marcarán la posición de los baños, aunque con la aparición de los trituradores, ya podemos desplazar los servicios a cualquier otro punto de la vivienda. Es igualmente necesario situar los shunts de ventilación de baños y cocinas y las montantes de agua y calefacción central. Estas dos últimas suelen discurrir por las cámaras de las fachadas con lo que no afectan a la nueva distribución, pero hay casos en los que suben adosadas a pilares e incluso cerca de simples tabiques.
4. Problemas de conservación general: Hay pisos con problemas mayores de los que se pueden resolver con una reforma integral. Principalmente son los defectos estructurales, que se pueden observar tanto en la propia vivienda como en los espacios comunes y las humedades por capilaridad, que se manifiestan normalmente en los muros de carga, en la planta más baja de cada edificio. Si cualquiera de ellos tiene una importancia notable, debemos olvidar esa compra, por mucho que nos pese.
5. Distribución equilibrada: Como resumen a todo lo anterior, yo creo que hay que buscar una distribución equilibrada. Salvo para casos de alto standing, donde las estancias pueden ser todo lo grandes que uno quiera y pueda pagar, y para el caso de infraviviendas, donde existen habitaciones mucho más pequeñas de lo que uno pueda imaginar, para el común de los mortales, hay que aplicar las reglas del equilibrio. Por ejemplo, si un piso tiene 70m2 pero sólo permite un apartamento de un dormitorio, estaremos pagando más de la cuenta, mientras que si amontonamos 3 dormitorios en 45m2, quizá ahorremos algo en la compra, pero la vivienda resultante es muy difícil que resulte atractiva para un futuro comprador.
En resumen, una vivienda comprada vieja y reformada íntegramente a gusto de su nuevo propietario es una opción que permite ahorrar mucho dinero y acumular grandes ilusiones y satisfacciones, pero hay que cuidar ciertos aspectos importantes para no acabar arrepintiéndose.



4 Comentarios:
Añadir que cuando se desplaza un baño (con los trituradores que comenta el arquitecto del artículo) siempre tendremos un baño (el del vecino superior) en la nueva estancia. Si es un comedor/salón tendremos ruidos de bajantes que en el caso de un dormitorio es mucho peor.
Buenas tardes, en primer lugar le agradezco la participación.
Respecto a su comentario en concreto, decir que yo suelo usar los trituradores para generar nuevos baños en viviendas que los necesitan, sin que eso signifique eliminar el servicio que funciona por gravedad.
De cualquier forma, incluso aunque así fuera, hay materiales de sobra para aislar acústicamente las bajantes y no sufrir los molestos ruidos de los que habla.
Gracias de nuevo, un saludo.
Sólo comentar que me ha gustado el articulo, los comentarios y que los respondas. Si no me equivoco, teniendo en cuenta lo que cuesta un piso....recomiendas ir acompañado de un profesional que pueda ver ese tipo de cosas (humedades..metros..bajantes....posibilidades de reforma..etc) y que tipo de profesional debe ser?arquitecto..aparejador..del ramo..
Alberto, muchas gracias por tu comentario.
Si yo te recomendara que siempre fueses acompañado de un arquitecto, pues se podría pensar que "acerco el ascua a mi sardina", dado que soy arquitecto y además especialista en inversiones inmobiliarias.
Si me permites voy a usar el símil automovilístico. Todos sabemos que un coche de segunda mano que salga bueno es la mejor compra posible, pero ante el temor de que nos puedan engañar, siempre buscamos un amigo mecánico o revisamos el coche en un taller antes de comprarlo. Por contra, comprando un coche nuevo, aceptamos que pagamos de más, pero nos ahorramos el asesoramiento de un profesional, porque el producto viene "garantizado".
Creo que el caso de las viviendas es casi idéntico. En cuanto a los profesionales que te pueden asesorar, los aparejadores tienen los mismos conocimientos que los arquitectos, e incluso más, en cuanto a patologías técnicas (humedades, problemas estructurales, ...) pero su formación no incluye el diseño, con lo que en general no están capacitados para proponer nuevas distribuciones.
Si quieres que tratemos tu caso concreto puedes contactarme en twitter @goitorre
Para poder comentar debes Acceder con tu cuenta