Comentarios: 0
Esta mujer inventó la primera casa que se limpiaba sola
con tocar un botón
YouTube

Todos hemos tenido alguna vez el sueño de vivir en una casa que se limpie sola. Parece imposible, pero lo cierto es que una mujer consiguió, hace ya unas décadas, que la utopía se hiciera realidad: Frances Gabe, ama de casa que a finales de los años 70 decidió acabar con la tortura interminable que supone estar al mando del hogar, convirtiéndolo en una vivienda capaz de mantenerse impecable con sólo tocar un botón.

La creadora de esta morada apta para lavarse y secarse sola falleció el 26 de diciembre de 2016 a los 101 años. Era la hija de un arquitecto e inventor cuyo trabajo obligaba a toda la familia a mudarse constantemente. Por eso Gabe llegó a asistir a 18 escuelas diferentes, y en ese tránsito aprendió atentamente de la labor de su padre.

A sus 17 años se casó con Herbert Grant Bateson en la ciudad de Oregón, Portland, donde residiría el resto de su vida. Juntos crearon y dirigieron un negocio de reparación en el que, según palabras de la propia Gabe, fue durante años “la jefa de su marido”. Más tarde, cuando se divorciaron, ella continuó viviendo en un remolque de la propiedad matrimonial.

En aquella época era madre de dos niños y no daba abasto ante la gran carga de trabajo que aquello suponía. Pero un día su vida dio un giro de 180 grados cuando se encontró una mancha de mermelada de higo en la pared.

Su reacción más inmediata fue usar la manguera para eliminar la confitura. Entonces, se le encendió la bombilla: pensó por primera vez en la idea de liberar a todas las mujeres del mundo de las tareas domésticas. “El trabajo en el hogar es ingrato e interminable. ¿Quién lo quiere? ¡Nadie!”, proclamaba en una entrevista allá por 1996.

Esta mujer inventó la primera casa que se limpiaba sola
con tocar un botón
Wekly World News

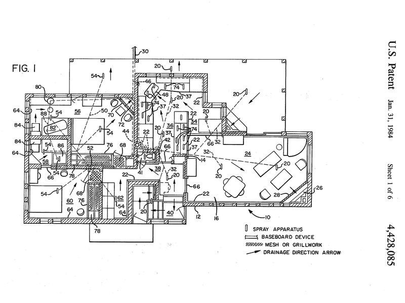
Su proyecto más famoso terminó de construirse en 1984, tras diez años de trabajo y décadas de planificación. El resultado, según la prensa de la época, fue “un lavavajillas gigantesco”. Esta vivienda con complejo de lavadora requería de la invención de 68 dispositivos separados para eliminar la suciedad de cada parte del hogar. 

Cómo logró una limpieza por arte de magia

La visionaria creó un armario que podía limpiar los platos sin necesidad de moverlos; colocó rociadores en el techo de cada habitación que impregnaban de agua y jabón un suelo revestido con barniz marino, que después se secaba con los respiraderos de aire caliente (la resina, la tela y los toldos protegían los muebles y los accesorios de la casa); armarios en los que se podía colgar la ropa sucia para lavarla, secarla y desplazarla directamente por cadenas hasta los armarios; libros y papeles que se guardaban en cajas de plástico para su protección...

Esta mujer inventó la primera casa que se limpiaba sola
con tocar un botón
YouTube

Si era la hora de limpiar, Gabe se escondía bajo un paraguas para no mojarse al poner en marcha los rociadores. El primer chorro arrojaba agua espumosa sobre las paredes y el suelo, y el segundo lo enjuagaba todo. Posteriormente, el aire caliente lo dejaba todo seco y la corriente inicial de agua se escapaba por los desagües inclinados que desembocaban en la caseta del perro, cuya limpieza también se ahorraba la inventora.

VÍDEO: https://www.youtube.com/watch?v=h95O5dQkoD4

Una fantasía truncada

“Pueden hablar todo lo que quieran sobre la liberación de las mujeres, pero las casas todavía están diseñadas para que tengamos que pasar la mitad del tiempo de rodillas”, denunciaba la visionaria. El objetivo por el que tanto luchó Gabe siempre fue el mismo: inspirar una nueva forma de autolimpieza a la hora de construir los edificios. Soñaba con aldeas enteras llenas de viviendas, edificios, oficinas y hospitales con esta función, y recorrió el país dando conferencias en museos, universidades y clubes de mujeres, con una maqueta del diseño de su casa que le llevó más de un año elaborar. Un modelo que ahora está expuesto en el museo de Hagley en Delaware.

Esta mujer inventó la primera casa que se limpiaba sola
con tocar un botón
Hagley Museum

Pero nunca pudo cumplir su sueño. En 2002, los costes derivados de dirigir la casa la habían dejado en bancarrota, por lo que no pudo renovar sus patentes. Al mismo tiempo, con los años, los desastres naturales dañaron el hogar y Gabe no tenía recursos para  mantenerlo en perfecto estado. De hecho, aunque cobraba por las visitas de los turistas, no conseguía suficiente recaudación para cubrir los gastos.

Además, sus esfuerzos nunca recibieron mucho apoyo de la comunidad. “Una vez tuve a un grupo de amas de casa furiosas en mi puerta diciéndome que les estaba quitando el trabajo y que, si no tenían que limpiar sus casas, sus maridos ya no las necesitarían”, contaba Gabe en 2006. A lo que ella contestó: “Si tuvieras más tiempo para pasar con tu marido, ¿no crees que eso le gustaría?”.

Esta mujer inventó la primera casa que se limpiaba sola
con tocar un botón
United States Patent and Trademark Office

¿Qué queda del lavavajillas gigante?

En 2009, los nietos de la inventora (sus hijos murieron antes que ella) la hicieron trasladarse a una residencia de ancianos tras aferrarse a su casa el tiempo que pudo. Su muerte no tuvo trascendencia fuera de los límites de la ciudad de Oregón, a pesar de que hubo un tiempo, entre finales del siglo XX y principios del siglo XXI, en el que Frances Gabe fue conocida alrededor del mundo porque su casa fue presentada en periódicos y revistas incluyendo The New York Times, The Guardian o People, entre otros.

La propiedad fue vendida hace ya algunos años, aunque la casa sigue en pie. No obstante, quien vive allí ahora tiene que limpiarla por sí mismo. Nacida a partir de una mermelada de higos, la que fue una ‘ducha colosal’ ahora sólo existe en la memoria de algunos. A pesar de esto, siendo la única persona en el mundo que ha vivido en un hogar así, su visión para el futuro de la limpieza no se olvidará jamás.

Ver comentarios (0) / Comentar

Para poder comentar debes Acceder con tu cuenta