Comentarios: 5
Mansión de cinco plantas con vistas a central park (nueva york)

Como cada jueves te presentamos una casa de ensueño. Esta vez nos adentramos en un espectacular edificio de estilo renacentista y uno de los más importantes de nueva york. Con unas maravillosas vistas al central park, en manhattan, este edificio tiene la versatilidad de ser utilizado como residencia o como centro comercial


Encargada en 1922 por un comerciante alemán, julius forstmann, la casa fue diseñada por c.p.h gilbert, un renombrado arquitecto que construyó majestuosas mansiones para la aristocracia de aquel entonces


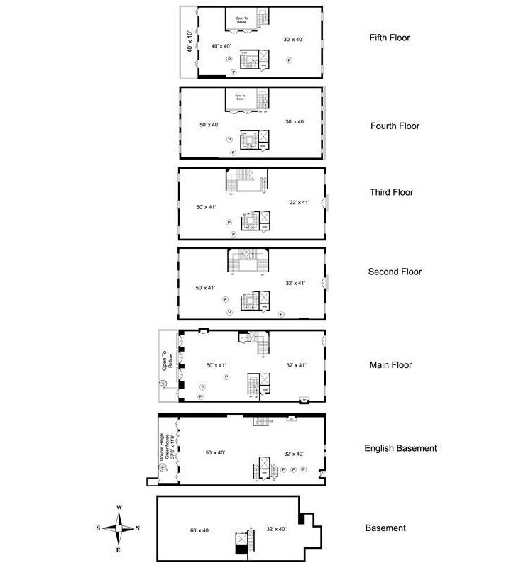
El edificio tiene una fachada de piedra caliza y consta de cinco plantas, un jardín y un sótano distribuidos en casi 2.000 m2. Posee escaleras y chimeneas de mármol y techos altos


La inmobiliaria sotheby's international realty comercializa este edificio por 59 millones de dólares (48 millones de euros)


Si crees que conoces alguna vivienda de ensueño y quieres que aparezca en esta sección, mándanos la información a redaccion@idealista.com

Ver comentarios (5) / Comentar

5 Comentarios:

17 Junio 2010, 12:31

Con la repeticion de este tipo de articulos, el "glamour" de idealista se va a porner por las nubes, ya solo falta contratar a algun periodista especializado en prensa del corazon, y la transformacion esta garantizada.
... que el señor nos pille confesados.

19 Junio 2010, 0:29

Lo que hace falta es una revolucion leninista-marxista...

28 Octubre 2010, 10:57

Para el numero 2. Justo, lo que hace falta es eso, para terminar de dejar a España hecha un solar, pregúntale a gente de los paises del este a ver que te dicen ellos de cómo han destrozado a dos generaciones esa gente en nombre del comunismo!!

28 Octubre 2010, 10:57

Para el numero 2. Justo, lo que hace falta es eso, para terminar de dejar a España hecha un solar, pregúntale a gente de los paises del este a ver que te dicen ellos de cómo han destrozado a dos generaciones esa gente en nombre del comunismo!!

Alvaro
24 Enero 2015, 11:46

Lo que hace falta es una revolución humanista.
Ya está bien de ideologías políticas, que son el opio del pueblo.

Para poder comentar debes Acceder con tu cuenta