Mario Lucas, director comercial de Bi·Homes, desvela a idealista/news cuáles son los beneficios del BIM al ser aplicados en la construcción industrializada
Comentarios: 0
Casa prefabricada moderna
Bi·Homes

Las casas prefabricadas han cambiado sustancialmente en los últimos años, mejorando la calidad de los modelos ofertados e, incluso, alterando la concepción que tienen sobre ellas las personas a una mucho más positiva. Este sector, en auge, se ha nutrido de varias fuentes para ello, como la implementación de tecnología y técnicas de vanguardia, por ejemplo, BIM (Building Information Modeling). 

Mario Lucas, director comercial de Bi·Homes, una empresa de casas prefabricadas que aplica esta metodología, desvela a idealista/news cuáles son los beneficios del BIM al ser aplicados en la construcción industrializada.

¿Qué supone el BIM en la construcción de casas prefabricadas?

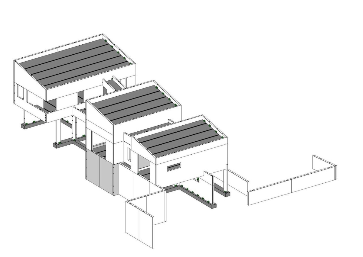
El BIM revoluciona nuestra forma de diseñar y construir al proporcionar un modelo digital que integra información detallada sobre todos los componentes de la casa. Este modelo nos permite visualizar, recrear y analizar el edificio en todas sus etapas, desde el diseño hasta la construcción y mantenimiento, asegurando que cada aspecto se planifique con precisión.

El BIM en la construcción prefabricada
Bi·Homes

Nos permite visualizar cómo interactúan los diferentes componentes de la casa antes de la construcción física. Por ejemplo, podemos ajustar la orientación de la vivienda para maximizar la eficiencia energética, optimizando la entrada de luz natural y la ventilación, reduciendo así la necesidad de iluminación y climatización artificial. Todo ello mediante simulaciones.

¿Lo hacen todas las empresas?

No, la adopción de BIM aún no es universal. En Bi·Homes, hemos adoptado esta tecnología porque nos permite estar a la vanguardia, ofreciendo a nuestros clientes no solo calidad y precisión, sino también un enfoque proactivo en innovación tecnológica.

Casas prefabricadas hechas con BIM
Bi·Homes

Sin embargo, la industria está reconociendo cada vez más los beneficios de BIM, no solo en términos de eficiencia y reducción de costes, sino también en mejorar la calidad de las construcciones y en la sostenibilidad de los proyectos. En este contexto, cada vez más empresas están comenzando a explorar y adoptar BIM, viéndolo como una inversión necesaria para mantenerse competitivas en un mercado en evolución dónde queremos ser punteros.

¿Qué beneficios tiene?

BIM nos permite mejorar significativamente la coordinación entre diferentes disciplinas, optimizando todos los procesos constructivos y reduciendo errores. Esto se traduce en ahorros de costes y tiempo, al mismo tiempo que mejora la calidad final del proyecto.

Interior vivienda modular
Bi·Homes

En un proyecto reciente de casas unifamiliares en la Sierra de Guadarrama, BIM nos ayudó a realizar un análisis detallado de la cantidad de materiales necesarios, lo que redujo el desperdicio y maximizó la eficiencia en el uso de recursos. Este enfoque no solo es económicamente beneficioso, sino que también apoya nuestro compromiso con la sostenibilidad.

¿Aplicar esta tecnología se traduce en casas más baratas?

Aunque BIM requiere una inversión inicial, el ahorro que genera a través de la reducción de errores y retrasos puede reducir el coste total de los proyectos hasta en un 20%. Estos ahorros se deben a la precisión en la planificación y a la reducción del desperdicio de materiales y recursos.

Casa modular
Bi·Homes

Gracias a esta metodología, reducimos notablemente el desperdicio alcanzando hasta un 15% en costes directos de materiales. Sin olvidar la optimización del tiempo que también juega un rol crucial en la reducción de costes gracias a la mejor coordinación y planificación de todas las fases de construcción, lo que permite una ejecución más fluida y sin interrupciones.

¿El aplicar BIM en la construcción de casas prefabricadas mejora su calidad?

Absolutamente. BIM nos permite alcanzar niveles superiores de calidad al facilitar un diseño detallado y una ejecución más controlada. Los problemas se identifican y resuelven en la etapa de diseño, mucho antes de que impacten la construcción física. Esto evita modificaciones de última hora que pueden comprometer la integridad estructural o la funcionalidad del edificio.

Esta tecnología aplicada a la construcción es una herramienta poderosa que está elevando los estándares de calidad en el sector de la construcción de casas prefabricadas. Su capacidad para mejorar la planificación, coordinación, y ejecución de proyectos tiene un impacto directo en la calidad de los edificios, beneficiando a constructores y propietarios por igual.

¿Y la eficiencia se ve potenciada?

Llegados a este punto, estos softwares tan avanzados son esenciales para diseñar viviendas más eficientes y sostenibles. Nos permiten simular el comportamiento energético y optimizar el uso de recursos desde el inicio, lo que resulta en construcciones que no solo son eficientes en su funcionamiento, sino también en su impacto ambiental.

Es decir, nos permite realizar ajustes proactivos en el diseño para mejorar la eficiencia térmica del edificio, así como la optimización de la envolvente térmica para reducir las demandas de calefacción y refrigeración.

Diseño con BIM
Bi·Homes

En conjunto, estas características demuestran su capacidad para mejorar no solo la eficiencia energética de las viviendas, sino también la sostenibilidad global del proceso de construcción, apoyando así el desarrollo de proyectos que son más respetuosos con el medio ambiente y más económicamente viables a largo plazo.

Respecto al tiempo, ¿se reduce?

Sí, podemos reducir el tiempo de construcción hasta en un 30% dependiendo de la complejidad del proyecto. Esta eficiencia se logra gracias a una mejor planificación y coordinación, permitiendo que las fases de construcción se ejecuten más fluidamente y sin interrupciones inesperadas.

Aplicamos la potencia BIM en la sincronización de llegadas de materiales y la secuencia de trabajo, optimizando el flujo de operaciones y minimizando los periodos de inactividad.

Para los desarrolladores inmobiliarios, esto significa poder comercializar y vender propiedades más rápidamente, lo cual es especialmente crítico en mercados con alta demanda de vivienda. Y, para los clientes, esto implica poder disfrutar de su nuevo hogar o realizar una inversión inmobiliaria en menos tiempo, lo que a menudo se traduce en una mayor satisfacción y un mejor retorno de la inversión.

Casa diseñada con la tecnología BIM
Bi·Homes

Nuestro método de aplicación de herramientas tecnológicamente avanzadas no solo mejoran la eficiencia operativa y la calidad del proyecto, sino que también es una inversión atractiva que ofrece beneficios tangibles en términos de reducción del tiempo de construcción y mejora de la rentabilidad general del proyecto. Este enfoque se alinea perfectamente con las necesidades de inversores y clientes que buscan eficiencia y efectividad en sus proyectos de construcción.

¿Cuánto lleváis utilizando BIM? 

Llevamos años integrando la tecnología BIM en cada uno de nuestros proyectos con un nivel de éxito que aumenta de forma sostenible, y seguimos constatando que es el mejor método para abordar nuestros proyectos de casas prefabricadas.

Gracias a la optimización de recursos, nos ha permitido no solo cumplir sino superar las expectativas de nuestros clientes, asegurando un alto estándar de calidad y eficiencia.

Dado el impacto positivo y las mejoras continuas, está claro que BIM seguirá siendo una parte integral de nuestra metodología de construcción. No tenemos intención de abandonar este enfoque; por el contrario, planeamos continuar invirtiendo en esta tecnología y capacitando a nuestro equipo para aprovechar al máximo sus capacidades, asegurando así que Bi·Homes se mantenga a la vanguardia en la construcción de viviendas prefabricadas.

¿Qué retos se enfrentan al implementar BIM en proyectos de construcción de casas prefabricadas?

Los principales desafíos incluyen la capacitación del personal, la inversión inicial en software y hardware, y la adaptación de los procesos de trabajo existentes para integrar completamente esta metodología. Sin embargo, los beneficios a largo plazo, como la reducción de costes y tiempos de construcción, compensan con creces estos retos iniciales.

Además, para nosotros, estas tecnologías facilitan la personalización al permitirnos modificar rápidamente los diseños y adaptarlos a las preferencias específicas de cada cliente. Esto asegura que cada casa que construimos no solo es funcional y eficiente, sino también única y personalizada.

¿Cómo ve Bi·Homes el futuro de BIM en la industria de la construcción?

En Bi·Homes, creemos que BIM será cada vez más crucial en la industria de la construcción. Anticipamos que su uso se expandirá, incluyendo más funcionalidades como el análisis del ciclo de vida de los materiales y una mayor integración con la inteligencia artificial para optimizar aún más la construcción y gestión de edificios.

Sigue toda la información inmobiliaria y los informes más novedosos en nuestra newsletter diaria y semanal. También puedes seguir el mercado inmobiliario de lujo con nuestro boletín mensual de lujo.

Ver comentarios (0) / Comentar

Para poder comentar debes Acceder con tu cuenta